Baerz & Co is een landelijk samenwerkingsverband van zorgvuldig geselecteerde boutique luxury makelaars. Samen vormen wij één netwerk, met één gedeeld aanbod. De woningen die u op onze website ziet, zijn afkomstig van alle aangesloten kantoren binnen Baerz & Co. Daardoor is niet ieder object rechtstreeks door ons kantoor in verkoop, maar door een gespecialiseerde collega binnen ons netwerk. Heeft u een woning gevonden die u aanspreekt en wilt u meer informatie? Dan brengen wij u graag persoonlijk in contact met de betreffende verkoopmakelaar, zodat u direct en zorgvuldig wordt begeleid.

KAAG
Emmalaan 3 - 2159 LP
Netherlands

Henriette van Keulen-Strumphler profile image
Henriette van Keulen-Strumphler
Real Estate Agent
€1,395,000 k.k.
Living Area
184m2
Plot Size
535m2
Bedrooms
3

Description

Detached villa in unique waterfront location - pure tranquility, luxury and vacation feeling!

Living where others vacation? This detached villa on Kaag Island makes it possible. Located in the middle of the Kagerplassen, surrounded by water and directly on water with its own jetty, this property offers everything you are looking for: space, comfort and privacy. Here every day begins with the gentle lapping of water in the background and ends on your own deck terrace while the boats slowly sail by.

• Directly on water
• 3 bedrooms
• Large luxury bathroom
• Parking on site

Built in 2000, living area 184m2, volume 655m3, plot 535m2

First floor - stylish and bright
You enter the house through a generous hallway with loft and the staircase upstairs. A checkroom niche with toilet and meter cupboard provide a practical layout. The living room is spacious, bright and cozy and features a large bay window, classic decorative moldings on the ceiling and a cozy gas fireplace. Thanks to three pairs of double doors and a sliding door, the living room is in direct connection with the sunny terrace on the water.

The modern kitchen diner is a place to get together. Cooking, having drinks or just enjoying the view - everything is possible here. Also from the kitchen you can step onto the deck terrace. There is also a separate, practical room with laundry facilities, central heating system and additional storage space.

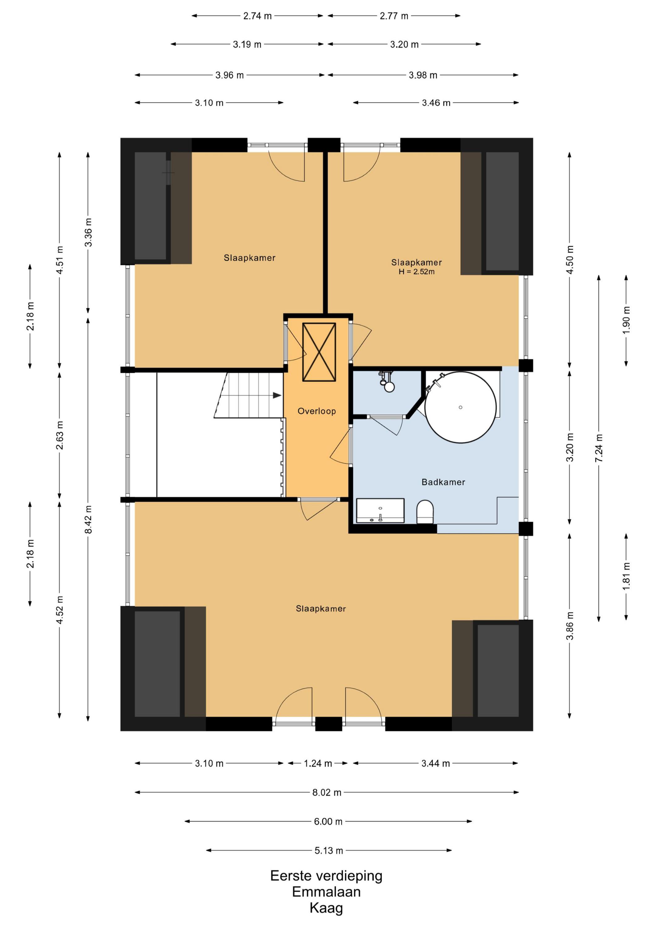
Second floor - space and comfort
On the second floor you will find access to the attic, three spacious bedrooms and a bathroom. All rooms have a dormer window for extra headroom and a spacious feeling and the doors have a charming French balcony. The luxurious bathroom, accessible from both the master bedroom and the landing, is a place of relaxation that includes a soaking tub/jacuzzi.

Outside - enjoying the waterfront
The beautifully landscaped front garden with hedges, ornamental paths and ornamental fencing offers plenty of peace and quiet and on-site parking. Behind the house is the spacious plastic deck terrace, a wonderful place to relax in the sun or shade. Your own boat is easily moored at your own jetty - sailing becomes very tempting. A handy storage room completes the picture.

Durable & well maintained
The villa was built in 2000 and therefore has excellent insulation. Energy label C is regulated.

Location - living on an island, yet central
Kaageiland is a unique place to live. Quiet, surrounded by nature and water, and yet surprisingly accessible. Via the A44, cities such as Leiden, Amsterdam, Haarlem and The Hague are easily accessible. In the immediate vicinity are all forms of water sports possible - sailing, supping, sloop sailing, you name it - you are so out.

Details in a row:
• Detached villa on unique island
• Located directly on water with private jetty
• Spacious living room with gas fireplace
• Modern kitchen with patio doors
• 3 spacious bedrooms with dormers and French balcony
• Luxury bathroom with jacuzzi
• Large plastic deck terrace on the water
• Fully insulated, air conditioning available

Be surprised by this attractive and complete home in a dream location. Experience for yourself what it is like to live every day with the ultimate vacation feeling.
Contact us for a viewing - you don't want to miss this unique opportunity!
Real estate agent Frits Wilbrink is happy to show you around.

Features

Air conditioning
Transfer of ownership
Asking Price
€ 1.395.000 k.k.
Status
beschikbaar
Acceptance
in overleg
Construction
Kind of house
Villa
Building type
vrijstaande woning
Construction period
2000
Energy rating
C
Roof type
zadeldak
Bedrooms
3
Bathrooms
1
Surface Areas And Volume
Living Area
184 m2
Other indoor space
0 m2
Volume in cubic meters
655 m3
Plot Size
535 m2
Facilities
Mechanische ventilatie
Airconditioning
Jacuzzi
Rookkanaal
Schuifpui
Frans balkon
Glasvezel kabel
Aan water
Aan rustige weg
In woonwijk
Beschutte ligging
Aan vaarwater
Baerz & Co Property Brochure

Brochure

Videos

Floor Plans

Strumphler Makelaars

Oscar Mendliklaan 9
2111 AS Aerdenhout

henriette@strumphlermakelaars.nl
+31 23 524 34 24

www.strumphlermakelaars.nl

Information / Viewing request

Henriette van Keulen-Strumphler profile image
Henriette van Keulen-Strumphler
Real Estate Agent

Buying a Luxury Property in Kaag

Kaag offers refined waterside living, a warm local community, and discreet advisory services for global buyers. Its island charm, cultural vibrancy, and proximity to key Dutch cities make it a preferred choice for astute families and investors.