Ons kantoor is lid van Baerz & Co Luxury Homes; een internationaal platform dat exclusieve woningmakelaars met elkaar verbindt. Neem contact op met ons secretariaat voor meer informatie over het landelijke aanbod, waarvan u hieronder een selectie kunt bekijken.

VELP
Pinkenbergseweg 37 - 6881 BC
Netherlands

Roy Boesveld profile image
Roy Boesveld
Makelaar / Taxateur
€1,665,000 k.k.
Living Area
350m2
Plot Size
1911m2
Bedrooms
4

Description

Located in a fantastic and unique location, this exceptionally spacious detached villa features an indoor swimming pool with jet stream.** In addition, the property includes a large wine cellar, a garage for two cars, four bedrooms, and an expansive living area (lounge, dining room, study, and open kitchen) offering stunning views of the beautifully landscaped, sunny garden with plenty of privacy. The property boasts a variety of terraces, borders, and lawns overlooking a gently sloping garden. The surrounding garden ensures complete privacy and includes mature hedges, shrubs, and trees. A stately driveway completes the picture.

In total peace and privacy, you can enjoy the generous space, the spectacular garden, and the remarkable architecture of this home. The villa is located at the foot of the Posbank nature reserve and on the edge of a charming residential area, just minutes away from the center of Velp with numerous amenities. Major roads are easily accessible, and the airports of Düsseldorf and Amsterdam are both approximately an hour’s drive away.

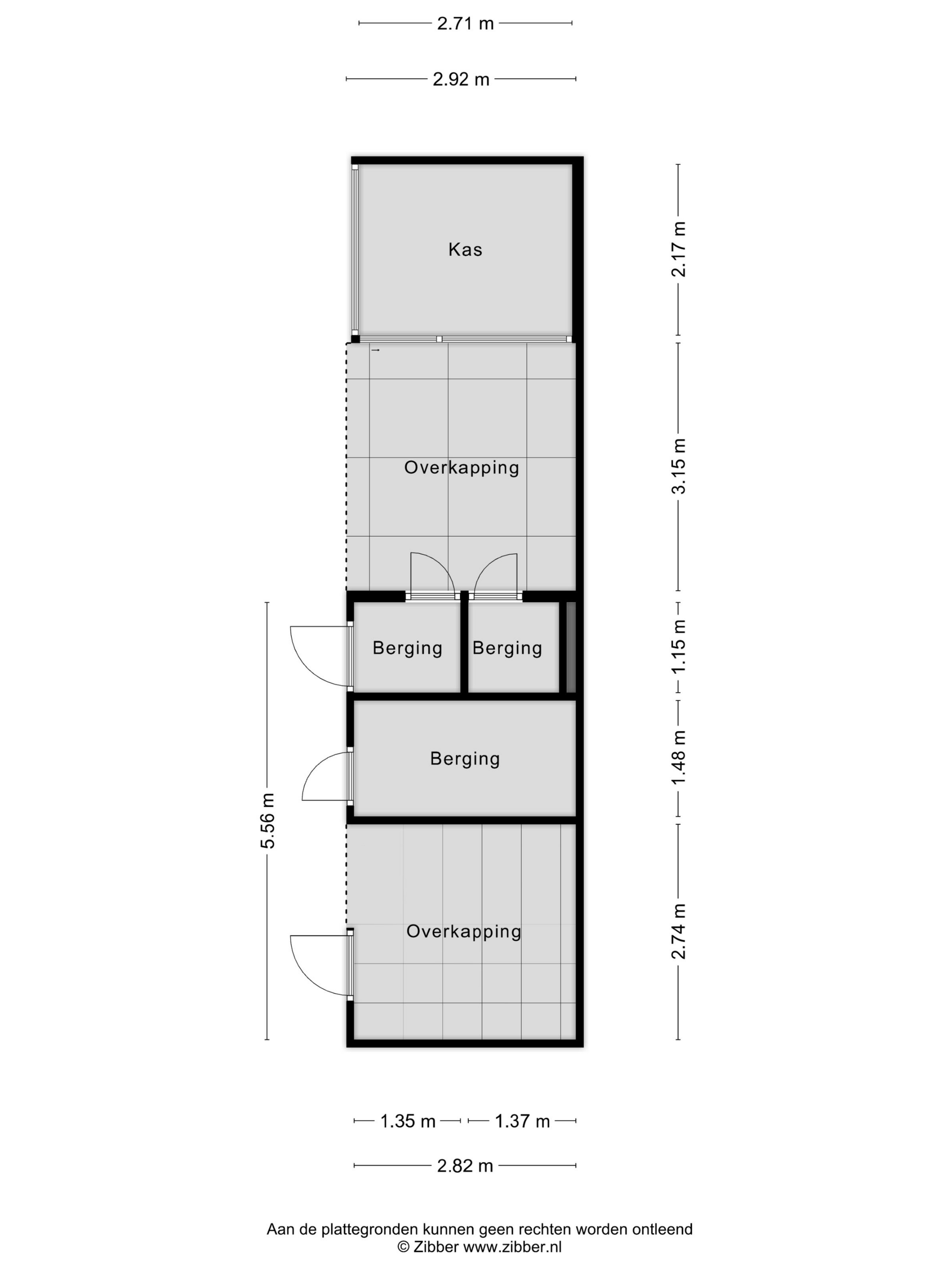
Living area: 350m² | Volume: 1,775m³ | Plot size: 1,911m²
Layout:

Basement:
This spacious basement includes a large garage with space for two cars, an electric door, and a charging station for an electric vehicle. There is also a beautiful wine cellar, several storage rooms, a technical room housing the heat pumps for both the house and the indoor pool with jet stream. Residents can access the house directly from the basement.

Ground Floor:
From the entrance, a spacious hallway provides access to all rooms on this floor. There are four bedrooms, two bathrooms, and an indoor swimming pool. The pool features sliding doors that open directly to the garden, allowing you to fully enjoy the natural surroundings.

The bathrooms are equipped with a washbasin and shower, while the main bathroom includes a bathtub and a second toilet. The master bedroom, located on the garden side of the house, includes ample closet space and air conditioning.

Moving further into the home, you enter the exceptionally large living area. The lounge features a full-width glass façade, offering breathtaking views of the garden. The open-plan kitchen is connected to a utility room, which includes a dumbwaiter from the basement. The dining room is located on the garden side, and in between lies a spacious study. All of these areas flow openly into each other, while the study and kitchen can be closed off with elegant sliding doors. The large covered terrace, accessible from the living room through sliding doors, features an electric retractable roof and sunshade.

This home is so special and offers such versatility that it's nearly impossible to fully describe. We warmly invite you to come and experience it for yourself.
Features:

- Energy label A
- Fully wheelchair accessible design
- Entire home equipped with underfloor heating
- Gas fireplace
- Covered terrace with electric retractable roof
- Two bathrooms
- Four bedrooms
- Indoor pool with jet stream
- Very large garden with irrigation system and robotic lawn mower
- Uniquely situated
- Integrated garage for two cars with EV charging point
- Large wine cellar
- Central vacuum system

Special Features

Swimming pool
Alarm system

Features

Transfer of ownership
Asking Price
€ 1.665.000 k.k.
Status
verkocht onder voorbehoud
Acceptance
in overleg
Construction
Kind of house
Villa
Building type
vrijstaande woning
Construction period
1991
Energy rating
A
Roof type
zadeldak
Bedrooms
4
Bathrooms
2
Surface Areas And Volume
Living Area
350 m2
Other indoor space
130 m2
Exterior space attached to the buildinge
50 m2
External storage space
14 m2
Volume in cubic meters
1775 m3
Plot Size
1911 m2
Facilities
Mechanische ventilatie
Alarminstallatie
Buitenzonwering
Zwembad
Lift
Rookkanaal
Schuifpui
Glasvezel kabel
Aan bosrand
Aan rustige weg
Vrij uitzicht
Beschutte ligging
In bosrijke omgeving
Baerz & Co Property Brochure

Brochure

Videos

Floor Plans

Willemsen Makelaars

Jansplaats 29
6811 GB Arnhem

r.boesveld@willemsen.nl
+31 26 445 27 51

www.willemsen.nl

Information / Viewing request

Roy Boesveld profile image
Roy Boesveld
Makelaar / Taxateur